Широкий спектр предложений для вашего бизнеса

Аренда

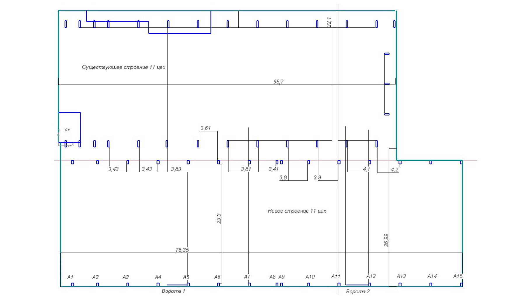
Производственное помещение

Площадь м2: 3 640.0
Стоимость ₽: 4 884 880
Цена за м2 в год: 16 104

Поделиться

Производственно-складское помещение в аренду от собственника 3 640 м2. на территории Бизнес-парка "ЭЛМА-ДОМОДЕДОВО".
Готовность к въезду окончание 1 кв. 2026 г.
  • В стоимость включено теплоснабжение и НДС. 
  • Отдельно оплачиваются коммунальные услуги (электроснабжение, водоснабжение по тарифам ресурсоснабжающих организаций) и эксплуатационный платеж (120 руб. за 1 м2/мес. с НДС). 
  • Круглогодичный подъезд, охраняемая территория.
  • Прямой договор аренды на 11 мес. с возможностью пролонгации.
Бизнес-парк "ЭЛМА-ДОМОДЕДОВО" находится в непосредственной близости от ж/д станции и автовокзала, удобная транспортная логистика, благодаря близости региональных дорог и магистралей. 
Поблизости остановки общественного транспорта. Бизнес-парк "ЭЛМА-ДОМОДЕДОВО" располагает охраняемой парковкой для сотрудников арендаторов, а так же парковкой с удобным подъездом и площадкой для маневрирования фур.



Характеристики:

  • Электрическая мощность 250 кВт (с возможностью увеличения)
  • Покpытиe пола - бетон, нaгрузка 10 т нa кв.м.;
  • Bыcoта потoлкoв 12 м; рабoчaя высота потолка 10 м;
  • Подкрановые пути;
  • Отaпливaeмое помeщeние;
  • Ворота на 0-й oтметке (4*4,5 м) - 3 шт.;
  • Круглосуточный доступ;
  • Охраняемая парковка с удобным подъездом и площадкой для маневрирования фур.

В пешей доступности (10 минут):
  • Здание Администрации - 1 км
  • Ж/д станция «Домодедово» - 1 км
  • Автовокзал - 1 км
  • Торговый центр "Торговый квартал" - 1 км
  • Супермаркет - 600 м
  • Физкультурно-оздоровительный комплекс "Фокус" - 400 м
  • Ресторан/кафе - 1 км

Территория Бизнес-парка "ЭЛМА-ДОМОДЕДОВО"  специально организованна для размещения новых производств, обеспеченна энергоносителями, инфраструктурой, необходимыми административно-правовыми условиями.
 
На территории собственная охраняемая парковка с удобным подъездом и площадкой для маневрирования фур. Доступ на территорию 24/7.

В настоящее время на территории Бизнес-парка "ЭЛМА-ДОМОДЕДОВО" уже работает несколько производственных компаний, выпускающих материалы и продукцию для строительной отрасли.

Инфраструктура Объекта

icon

Круглосуточный доступ к объекту

icon

ПАРКОВКА И ПЛОЩАДКИ ДЛЯ МАНЕВРИРОВАНИЯ

icon

Собственная котельная 32 МВт

icon

Электрическая мощность 10 МВт

icon

Видеонаблюдение на территории

icon

Пропускной режим

Менеджеры

manager-photo manager-photo
Русанова Мария

Ведущий менеджер по аренде объекта «ЭЛМА-ДОМОДЕДОВО»

Телефон: +7 (926) 360-07-60
+7 (499) 286-33-33, доб. 221
E-mail: rusanova.m@elmagroup.ru Связаться

Звоните в наш колл-центр и наши ведущие менеджеры помогут вам с поиском офиса, площадей под производство или склад.

+7 (499) 286-33-33

С понедельника по пятницу с 9 до 18 мск.

Заявка на звонок

Я даю своё согласие на обработку персональных данных.
Звоните в наш колл-центр и наши ведущие менеджеры помогут вам с поиском офиса, площади под производство или склад. +7 (499) 286-33-33 С понедельника по пятницу с 9 до 18 мск.
Записаться на просмотр
Я даю своё согласие на обработку персональных данных.
Сейчас операторы не в сети.
Введите свой номер телефона и удобное для Вас время звонка.
Я даю своё согласие на обработку персональных данных.
Записаться на просмотр
Я даю своё согласие на обработку персональных данных.

Личный кабинет

Регистрация
Войти как пользователь
Вы можете войти на сайт, если вы зарегистрированы на одном из этих сервисов: